NEW BUILD - Penthouse with rooftop and panoramic views over the famous village, the sea and the castle. Eze Village within 1km for this new exclusive development with just 13 apartments with private gardens, balconies or rooftops, some offering stunning views over the sea and the famous village. Communal pool, high specifications, underground car park and bike storage. 30 mins to Nice international airport. Fantastic opportunity to acquire an elegant and spacious 3 bedroom 2 bathroom top floor apartment with private access to a rooftop and stunning views in one of the most famous villages on the Cote d'Azur. Parking included. Bus shuttle available. Provisional delivery at the end of 2027. Low French stamp duty.
APARTMENTS
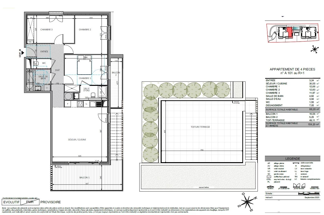
The new secure scheme offers just 13 apartments, ranging from 1 to 3 bedrooms. The interiors are carefully laid out: optimal orientations, large bay windows, glass balcony railings, private gardens with wooden decks or magnificent rooftop terraces that offer exceptional panoramas of the Mediterranean, the castle, and the village. The floor plans also reveal functional and comfortable interiors, including storage spaces, a dressing room, and a laundry room for personalized comfort for some.
In order to preserve the green character of the area, the car park is located entirely underground, while the bicycle storage areas are located on the ground floor. The green spaces and private gardens are adorned with native trees, some preserved, others newly planted such as palm trees, olive trees, magnolias, laurels, and strawberry trees. The roofs are also planted with perennials and grasses. At the heart of this unique setting, a swimming pool boasts a wide deck and a pool house.
Key features
• RE2020 Thermal Regulations
• Individual heating with thermodynamic water heater
• Electric roller shutters in all rooms
• Tiled bathrooms and shower rooms
• 80x80cm tiles in all rooms
• Bathroom equipped with a vanity unit with mirror and LED light; Wall-hung toilets
• Access control to entrance halls via INTRATONE system
• Apartment entrance doors with A2P** 3-point locks
• Lift serving all floors
• Underground parking
• Underground bicycle storage
• Communal pool
LOCATION - EZE
In the heart of the French Riviera, between Nice and Monaco, Èze is a medieval gem perched on a rock overlooking the Mediterranean. The cobbled streets of its historic center, lined with light-colored walls where bougainvillea and jasmine bloom, make it one of the most beautiful villages in the region. On the site of a former fortress, the Exotic Garden offers an incomparable panorama of the Riviera. Steeped in history, Èze reveals its art galleries, its Artisan workshops and perfume boutiques, such as Fragonard, showcase local craftsmanship. On the seaside, at the foot of the village and nearby, lie some of the most beautiful coves in the world, such as Mala beach, which can be reached via paths winding through the garrigue.
Just 15 minutes from the prestigious Principality of Monaco and 25 minutes from the vibrant city of Nice, this new development is an address steeped in tranquility. The Tennis Club is within easy walking distance and a nearby bus line connects to the village. By car, it only takes a few minutes to reach the port of Beaulieu, Cannes, Grasse, and the inland region with its mountain resorts. Finally, in Èze Bord de Mer, the train station provides easy access to the entire region and Italy.
Provisional delivery: End 2027
Low French stamp duty/Reduced notaire fees




This site is protected by reCAPTCHA and the Google Privacy Policy and Terms of Service apply.